Box per rampa esterna
Veroni Cotti Srl
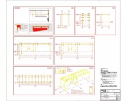
La nostra divisione ” Edilizia”, ha affiancato il nostro storico cliente nella realizzazione di un nuovo Box per la chiusura di una rampa esterna. Il progetto ha richiesto la fornitura e l’installazione di una struttura in acciaio zincato secondo normativa XC3 ( 4.000 Kg.), pannelli sandwich per il tamponamento esterno ricoperti poi di lamiere grecate di facciata. 22 mq. di finestrature fisse, chiusure industriali e pannelli “RAIN” di copertura; la parte interna è stata rivestita con pannello sandwich in alluminio goffrato rifinito con angolari in acciaio inox fiorettato.
Cliente:
Veroni Cotti Srl
Data:
2015
Località:
Gazzata di S. Martino in Rio (RE)
Progetto:
Box Rampa esterna
Volumi:
300 mc.
Layout+engineering+execution:
Ufficio tecnico Gelox International srl










